Proyecto

Favela Restaurante

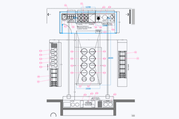
Cómo se realizó el Proyecto

El diseño de una cocina de restaurante es esencial para garantizar la eficiencia operativa y la seguridad en la preparación de alimentos. Algunos elementos clave a considerar en el diseño de una cocina de restaurante incluyen:

.

Distribución y flujo de trabajo:

Organizamos la cocina de manera que el flujo de trabajo sea eficiente. Esto significa que los chefs y el personal de cocina deben tener acceso fácil a los ingredientes, equipos y áreas de preparación.

Zonificación:

Separa las áreas de preparación, cocción, almacenamiento y lavado para evitar la contaminación cruzada y mantener la higiene.

Cumplimiento normativo:

Nos aseguramos de que tu diseño cumpla con todas las regulaciones locales y nacionales, incluidas las relacionadas con la seguridad alimentaria y la accesibilidad.

Mantenimiento Preventivo:

Implementamos un plan de mantenimiento proactivo para garantizar el funcionamiento sin problemas de la cocina a lo largo del tiempo.

Teléfono

33 1782 2002

Dirección

Mar Báltico 2240 PH, Country Club 44160, Guadalajara, Jal.

Correo Electrónico

contacto@webkitchen.mx